UNITÀ - A

Villetta di testa con giardino privato.

Impianto di riscaldamento a pavimento e raffrescamento tramite split. La produzione di acqua calda per usi termici e sanitari avviene mediante pompe di calore.

I serramenti sono in legno dotati di doppia camera per garantire comfort acustico e termico.

I pavimenti interni ed esterni sono personalizzabili e possono essere scelti tra quelli compresi nel capitolato.

E' previsto un impianto fotovoltaico da 6kW, per garantire un risparmio sui costi di gestione dell'appartamento.

Nel piano seminterrato è di pertinenza dell'immobile un box doppio di 47mq ed un'ampia cantina di 46mq.

Villetta su 3 livelli

Villetta su 3 livelli

Giardino Privato

Giardino Privato

Garage Doppio

Garage Doppio

Nuova Costruzione

Nuova Costruzione

Classe A

Classe A

Villetta a schiera di nuova costruzione, facente parte di un complesso di solo 3 ville, con finiture personalizzabili e consegna prevista entro dicembre 2026, in tranquilla zona residenziale.

Le abitazioni, con ingresso pedonale indipendente, si sviluppano su tre livelli collegati da scala interna: 

- Piano interrato: box doppio e cantina 

- Piano terra: soggiorno, cucina separata, bagno finestrato 

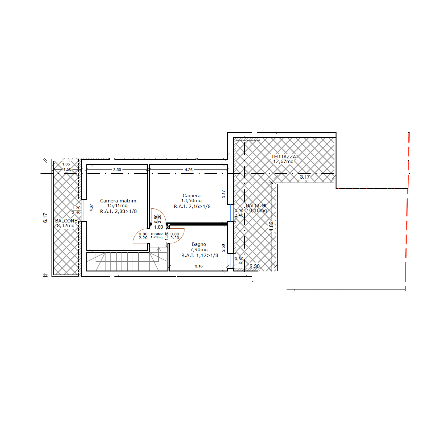
- Piano primo: due camere da letto, entrambe con accesso a un balcone privato di rispettivamente 14 mq e 18mq, ed bagno finestrato 

Completano la proprietà: 

- Portico d’ingresso di circa 9 mq 

- Ampio giardino privato sul retro di circa 130 mq 

- Portico coperto sul retro di circa 15 mq Dotazioni principali: 

- Classe energetica A - Tetto in legno isolato con travi a vista 

- Serramenti in legno con doppio vetro 

- Riscaldamento autonomo a pavimento 

- Raffrescamento con split 

- Impianto fotovoltaico da 6 kW per ogni unità 

Soluzione ideale per chi cerca indipendenza, spazi esterni generosi ed elevata efficienza energetica in un contesto di nuova realizzazione.

richiesta 430.000€

Contattaci