Villetta ristrutturata a Manerbio Manerbio
186
Superficie 186 m²
e
Classe energetica E
box-doppio
Box auto Box doppio
assente
Ascensore Assente
ristrutturato
Stato immobile Ristrutturato
su-più-livelli
Piano Su più livelli
autonomo
Riscaldamento Autonomo
35
Spese condominiali 35 €/mese
privato
Giardino Privato
12 mq
Terrazza 12 mq
2004
Anno Costruzione 2004

Descrizione

A Manerbio, in tranquilla zona residenziale, proponiamo in vendita villetta indipendente completamente riqualificata. La proprietà rappresenta una soluzione ideale per chi desidera una casa pronta da abitare, con impianti moderni, elevato comfort abitativo e spazi ben distribuiti. 

L’immobile è stato oggetto di importanti lavori di ristrutturazione nel 2019, che hanno interessato gli impianti e l’efficienza energetica dell’abitazione, migliorandone notevolmente le prestazioni e la qualità della vita quotidiana. 

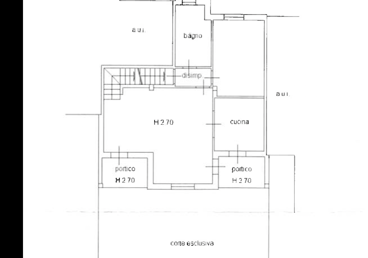
Piano terra: 

Ingresso pedonale indipendente con giardino privato. 

Zona giorno, composta da soggiorno luminoso e cucina separata, spazi funzionali e accoglienti ideali per la vita familiare. 

Completa il piano un bagno di servizio ed una camera. 

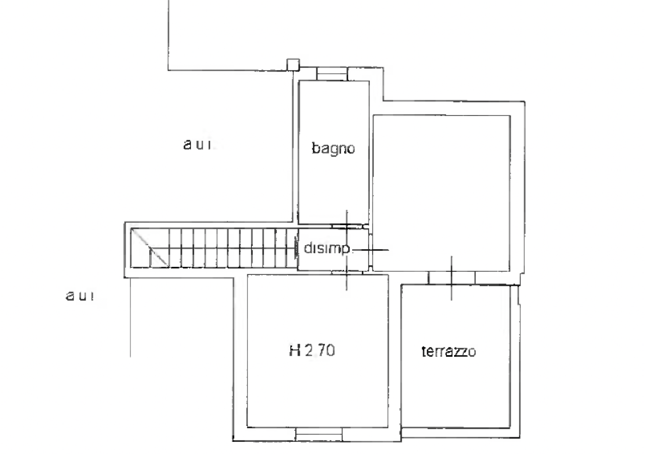
Piano primo: 

La zona notte ospita due camere da letto di buona metratura, di cui una con accesso alla terrazza ed un bagno, garantendo privacy e comfort per tutta la famiglia 

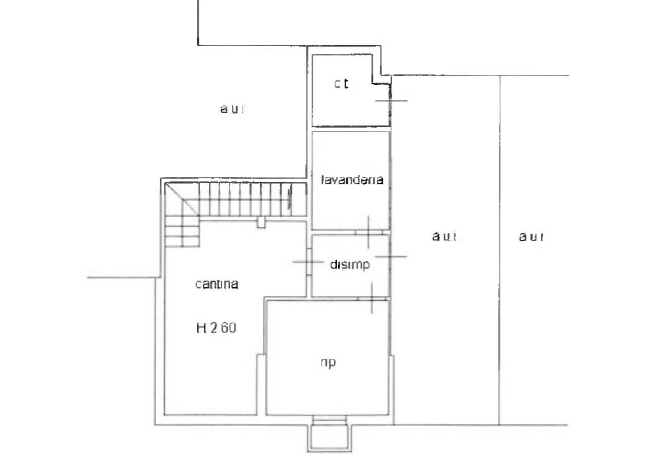
Piano seminterrato: 

Autorimessa doppia con locali accessori quali cantina, lavanderia, ripostiglio e centrale termica. 

L’abitazione è stata migliorata con interventi di grande valore: 

- rifacimento completo degli impianti 

- cappotto termico esterno 

- riscaldamento a pavimento 

- impianto di allarme 

- aggiornamento generale delle dotazioni tecnologiche 

Questi lavori rendono l’immobile efficiente, moderno e con costi di gestione contenuti.

Caratteristiche

Comune Manerbio
Tipologia contratto Vendita
Tipologia immobile Villetta a schiera
Locali 4
Cucina Abitabile
Arredamento Non arredato
Bagni 2
Infissi esterni Doppio vetro / Legno
Impianto TV Singolo
Servizio portineria Assente
Classe immobiliare Media
Lati liberi Due paralleli
Affaccio Esterno
Tipologia impianto riscaldamento A pavimento
Alimentazione riscaldamento Metano
Impianto di climatizzazione Autonomo
Tipologia impianto di climatizzazione Freddo / Caldo

Altre caratteristiche

Cantina Porta blindata Impianto d'allarme Cancello elettrico Videocitofono

Punti d'interesse

  • Negozi
  • Istruzione
  • Ristorazione
  • Trasporti
  • Uffici postali
  • Forze dell'ordine
  • Sanità
  • Palestre
  • Arte
vendita

Villetta ristrutturata a Manerbio

Manerbio
405.000 €