Quadrilocale ristrutturato zona nord Brescia Brescia
116
Superficie 116 m²
a+
Classe energetica A+
box-singolo
Box auto Box singolo
presente
Ascensore Presente
ristrutturato
Stato immobile Ristrutturato
primo-piano
Piano 1
centralizzato
Riscaldamento Centralizzato
212
Spese condominiali 212 €/mese
nessuno
Giardino Nessuno
1962
Anno Costruzione 1962

Descrizione

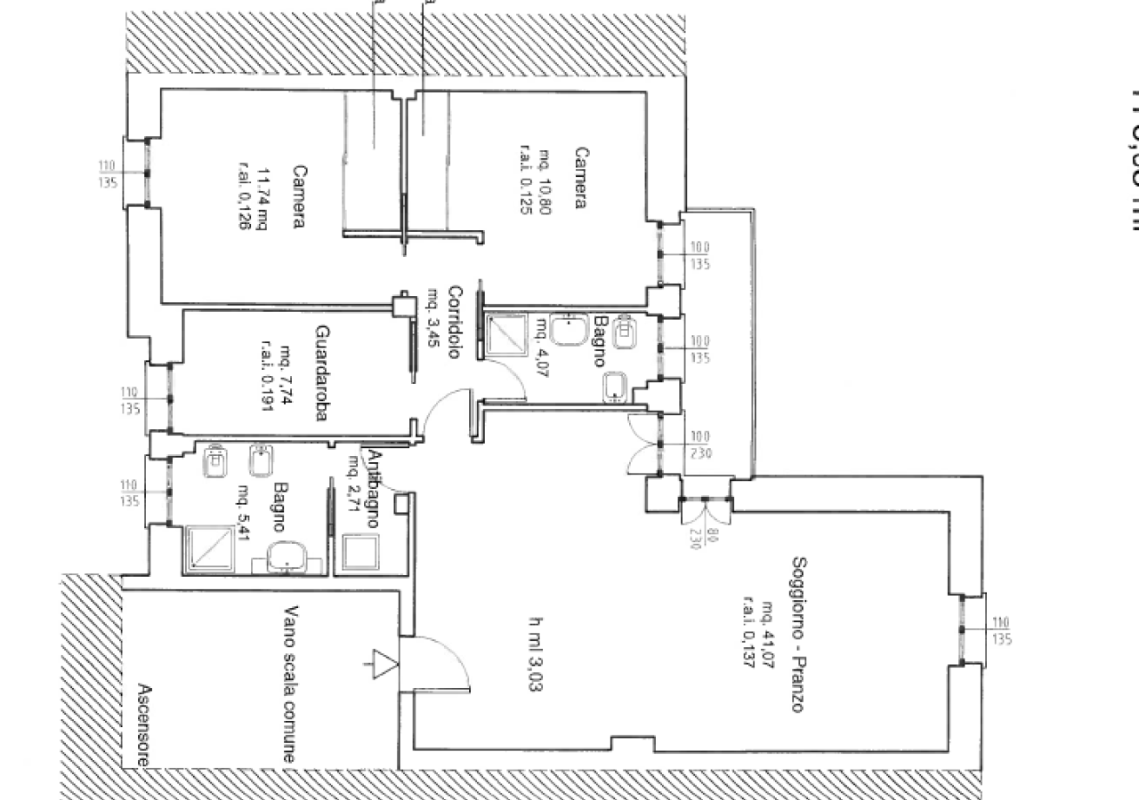
In una delle zone residenziali più richieste e apprezzate di Brescia, nel cuore di Via Veneto, proponiamo in vendita quadrilocale completamente ristrutturato nel 2023, inserito in contesto condominiale riqualificato e ben abitato. L’appartamento è composto da una luminosa zona giorno con cucina a vista, funzionale e accogliente, due camere da letto, oltre a un locale guardaroba/studio, ideale come terza cameretta, ufficio o spazio multifunzionale. 

Completano la soluzione due bagni finestrati con doccia, di cui uno con comoda zona lavanderia. 

La proprietà include cantina e box auto singolo al piano seminterrato. Il palazzo ha recentemente usufruito degli interventi del Bonus 110%, con rifacimento del tetto e cappotto termico esterno, garantendo elevati standard di efficienza energetica, comfort e riduzione dei costi di gestione. 

La zona Via Veneto rappresenta un valore aggiunto di assoluto rilievo: quartiere elegante e servitissimo, comodo al centro storico, alle principali vie di comunicazione, a scuole, negozi, mezzi pubblici e aree verdi, ideale per chi desidera vivere in un contesto residenziale tranquillo ma strategico. Soluzione ideale per famiglie o per chi cerca un’abitazione moderna, efficiente e situata in una delle migliori aree della città.

Caratteristiche

Comune Brescia
Tipologia contratto Vendita
Tipologia immobile Appartamento
Locali 4
Cucina A vista
Bagni 2
Infissi esterni Doppio vetro / PVC
Impianto TV Centralizzato
Servizio portineria Assente
Classe immobiliare Signorile
Lati liberi Due paralleli
Affaccio Esterno
Tipologia impianto riscaldamento A radiatori
Alimentazione riscaldamento Teleriscaldamento
Impianto di climatizzazione Autonomo
Tipologia impianto di climatizzazione Freddo / Caldo

Altre caratteristiche

Cantina Porta blindata Cancello elettrico Fibra ottica

Punti d'interesse

Via Massimo d'Azeglio, 42, Brescia, BS, Italia

  • Negozi
  • Istruzione
  • Ristorazione
  • Trasporti
  • Uffici postali
  • Forze dell'ordine
  • Sanità
  • Palestre
  • Arte
vendita

Quadrilocale ristrutturato zona nord Brescia

Brescia
390.000 €