UNIT - C

Three-room apartment on the first floor with private terrace.

Centralized heating and cooling system with radiant floor panels. Hot water production for thermal and sanitary uses is by heat pumps. Controlled mechanical ventilation VMC is provided.

The apartment is equipped with standard Biticino Living Now system, with the possibility of inserting home automation on request.

The windows and doors are made of white pvc or aluminum, equipped with triple chamber to ensure acoustic and thermal comfort, with aluminum shutters.

Interior floors are rectified porcelain stoneware with wood effect (20x120 mm) or concrete effect (60x120 mm).

Exterior floors are Saxa-type porcelain stoneware (25x25 mm) and (25x50 mm).

A photovoltaic system is planned to ensure savings on the running costs of the apartment.

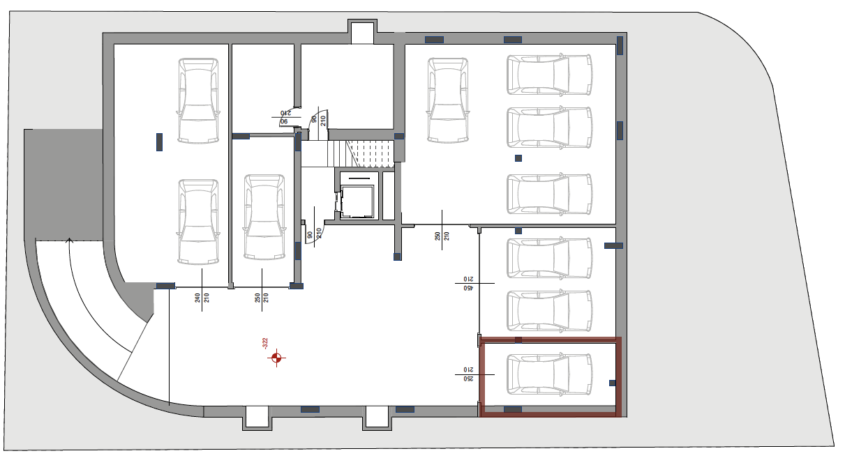
In the basement belongs to the property a single garage, with the possibility also to purchase, separately, 1 or 2 outdoor uncovered parking spaces.

First Floor

First Floor

Private Terrace

Private Terrace

Single Garage

Single Garage

Elevator

Elevator

New Construction

New Construction

Class A

Class A

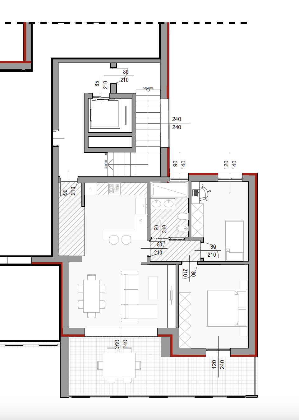
The apartment is developed on the first floor on a gross area of 82 sqm, with a private terrace of 23 sqm, accessible from the living room and master bedroom.

The living area, with an open kitchen, offers ample space and the glass windows make the room very bright.

The sleeping area includes a double bedroom, with access to the terrace, a twin bedroom and a bathroom.

Completes the solution, in the basement, a single garage of 17 sqm.

CONFIDENTIAL NEGOTIATION

Contact us

Apartment floor plan

DOWNLOAD

need more information?

Request information
IubendaCookiesolution.Code