UNIT - B

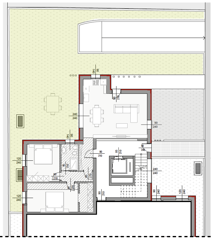
Three-room apartment on the ground floor with private garden.

Centralized heating and cooling system with radiant floor panels. Hot water production for thermal and sanitary uses is by heat pumps. Controlled mechanical ventilation VMC is provided.

The apartment is equipped with standard Biticino Living Now system, with the possibility of inserting home automation on request.

The windows and doors are made of white pvc or aluminum, equipped with triple chamber to ensure acoustic and thermal comfort, with aluminum shutters.

Interior floors are rectified porcelain stoneware with wood effect (20x120 mm) or concrete effect (60x120 mm).

Exterior floors are Saxa-type porcelain stoneware (25x25 mm) and (25x50 mm).

A photovoltaic system is planned to ensure savings on the running costs of the apartment.

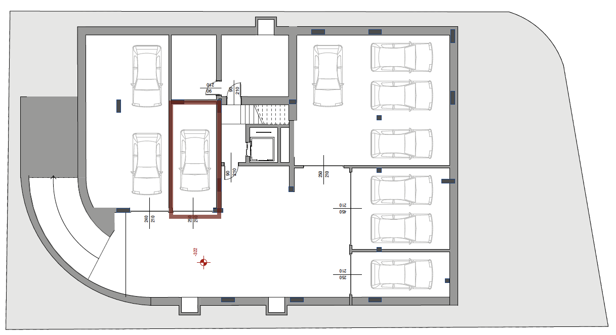
In the basement belongs to the property a single garage, with the possibility also to purchase, separately, 1 or 2 outdoor uncovered parking spaces.

Ground Floor

Ground Floor

Private Garden

Private Garden

Single Garage

Single Garage

Elevator

Elevator

New Construction

New Construction

Class A

Class A

The apartment is developed on the ground floor over a gross area of 92 sqm, with access to the 160 sqm private garden that surrounds the property on two sides and a 5 sqm loggia.

The living area, with an open kitchen, offers ample space and the windows make the room very bright and offer direct access to the private garden.

The sleeping area includes a master bedroom, with walk-in closet, a twin bedroom and a bathroom.

Completes the solution, in the basement, a single car garage of 18 sqm.


CONFIDENTIAL NEGOTIATION

Contact us

Apartment floor plan

DOWNLOAD

need more information?

Request information
IubendaCookiesolution.Code