UNIT - A

Four-room apartment on the ground floor with private garden.

Centralized heating and cooling system with radiant floor panels. Hot water production for thermal and sanitary uses is by heat pumps. Controlled mechanical ventilation VMC is provided.

The apartment is equipped with standard Biticino Living Now system, with the possibility of inserting home automation on request.

The windows and doors are made of white pvc or aluminum, equipped with triple chamber to ensure acoustic and thermal comfort, with aluminum shutters.

Interior floors are rectified porcelain stoneware with wood effect (20x120 mm) or concrete effect (60x120 mm).

Exterior floors are Saxa-type porcelain stoneware (25x25 mm) and (25x50 mm).

A photovoltaic system is planned to ensure savings on the running costs of the apartment.

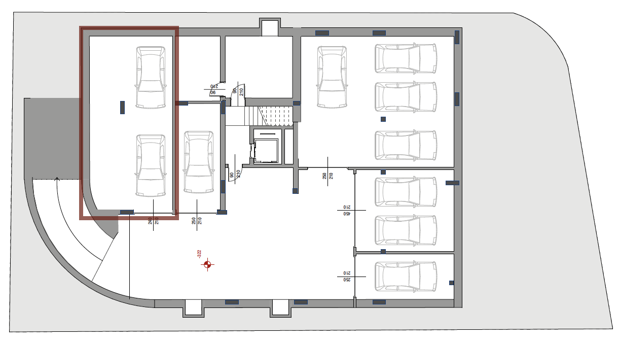
In the basement belongs to the property a double garage, with the possibility also to purchase, separately, 1 or 2 outdoor uncovered parking spaces.

Ground Floor

Ground Floor

Private Garden

Private Garden

Double Garage

Double Garage

Elevator

Elevator

New Construction

New Construction

Class A

Class A

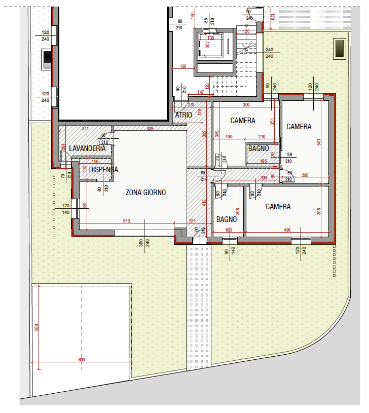
The apartment is developed on the ground floor on a gross area of 133 sqm, with access to the 140 sqm private garden that surrounds the property on three sides and a 4 sqm loggia.

The living area, with an open kitchen and a pantry room, offers ample space and windows that make the room very bright and offer direct access to the private garden. A windowed laundry room completes the environment.

The sleeping area includes two double bedrooms, one of which has a master bathroom, a twin bedroom and a bathroom.

Completing the solution, on the basement floor, a double garage of 53 sqm.

CONFIDENTIAL NEGOTIATION

Contact us

Apartment floor plan

DOWNLOAD

need more information?

Request information
IubendaCookiesolution.Code